ID CP3013718

Comision 0% Casa in Saliciea, 221 mp utili, teren 523 mp

ID CP3013718

275,000 €

Casă / Vilă cu 6 camere de vânzare
Salicea
221 mp
2025

Propun spre vanzare o proprietate aparte, situata in Salicea, intr-o zona urbanizata si apreciata pentru liniste, natura si accesul rapid catre Cluj-Napoca. Pozitionata aproape de padure si de oras in acelasi timp, casa ofera un echilibru rar intre intimitate, spatiu si conectivitate.

Imobilul este intabulat, are CF disponibil, o suprafata utila de 221 mp, suprafata desfasurata de 285 mp, teren de 523 mp si garaj de 23,46 mp. Proprietatea se vinde in prezent finisata exterior si la rosu in interior, cu posibilitate de achizitie si in varianta semifinisata sau la cheie. Este disponibila si o formula avantajoasa de plata, cu avans si diferenta pana la 30.06.2027, fara dobanda.

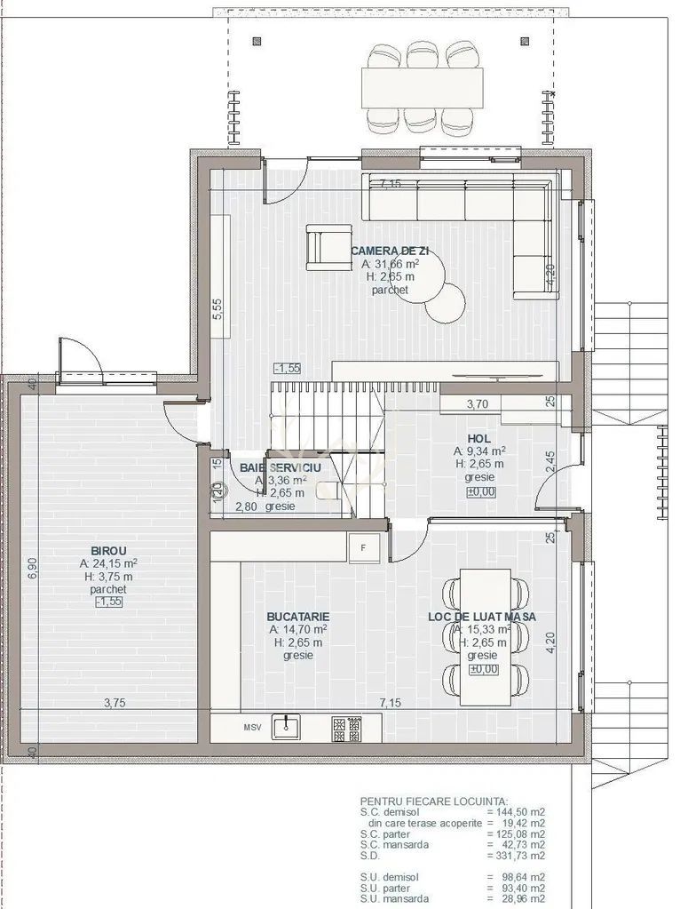
Compartimentarea este dispusa pe niveluri, astfel:

- Primul nivel: living, bucatarie cu loc de luat masa, birou generos cu inaltime de 5 m, baie, hol, terasa acoperita de aproximativ 20 mp

- Etaj: dormitor matrimonial cu baie proprie si dressing, 2 dormitoare, baie, hol, garaj

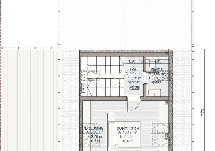
- Ultimul nivel: dormitor, baie, hol

Constructia beneficiaza de hidroizolatie la fundatie, 3 sisteme de drenaj pentru intreaga curte, izolatie exterioara premium si tamplarie Salamander cu geam tripan. In garaj incape o masina, iar in fata garajului mai poate fi parcata inca una.

O proprietate potrivita pentru cei care cauta o casa spatioasa, bine construita si cu potential excelent de personalizare, intr-una dintre cele mai cautate zone de case de langa Cluj.

Pentru mai multe informatii asteptam cu drag sa ne contactati!

Citește mai mult

  • Număr camere
    6
  • Dormitoare
    4
  • Număr bucătării
    1
  • Număr băi
    4
  • Număr garaje
    1
  • Număr locuri parcare
    2
  • Disponibilitate
    Imediat
  • Tip casă
    Individual
  • Suprafață utilă
    221 mp
  • Suprafață construită
    285 mp
  • Suprafață teren
    523 mp
  • Stadiu construcție
    Semifinisat
  • An construcție
    2025
  • Construcție nouă
    Da
  • Tip construcție
    Cărămidă
  • Număr etaje clădire
    1
  • Are demisol
    Da
  • Are mansardă
    Da

Facilități

Acoperiș
Apă
Curent
Fosă septică
Garaj
Geamuri tripan
Izolație exterioară
Străzi asfaltate
Daniela Muresan - Garden Estate
Daniela Muresan
Consultant imobiliar

0743580315


Solicită chiar acum o vizionare
Telefon
Sună acum Solicită vizionare
Necesare:

Site-ul nu poate funcționa corect fără aceste cookie-uri. Vezi cookie-urile

Statistică:

Strângem statistici anonime despre voi, vizitatorii unici, pentru a vă îmbunătăți experiența dumneavoastră. Vezi cookie-urile

Marketing:

Pentru a ne promova mai eficient serviciile noastre, folosim cookies pentru a vă identifica și a vă oferi proprietăți și servicii personalizate. Vezi cookie-urile

Acest site folosește cookies, află detalii. Alege ce tipuri de cookies dorești să permitem: